Great Missenden Buckinghamshire HP16 9PH Mapridge Green Lane

Guide Price
£4,000,000
  • 6
  • 4
  • 4
  • Freehold
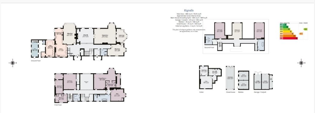
  • E Energy Efficiency Rating
Ref: LON240037
Interested in this property?
Guide Price
£4,000,000

A Distinguished countryside retreat on Mapridge Green Lane

Set in the heart of the sought-after countryside of Great Missenden, Rignalls on Mapridge Green Lane is an exceptional six-bedroom residence that combines timeless character with generous living space and privacy.

This impressive home is approached via a private driveway, offering a sense of arrival and seclusion. Inside, the property boasts expansive and versatile accommodation, ideal for both family living and entertaining. Multiple reception rooms provide elegant yet comfortable spaces, with large windows framing picturesque views of the surrounding landscape and allowing natural light to flood throughout.

The well-appointed kitchen serves as the heart of the home, featuring ample workspace, quality fittings, and a welcoming atmosphere for gatherings. Each of the six bedrooms is generously proportioned, with the principal suite offering a luxurious retreat complete with its own en-suite facilities.

Outside, the grounds are equally impressive, with beautifully maintained gardens, mature trees, and open areas perfect for outdoor dining, relaxation, or family activities. The setting offers a peaceful rural lifestyle while still being conveniently located within easy reach of local amenities, reputable schools, and transport links into London.

Rignalls presents a rare opportunity to acquire a substantial and characterful home in one of Buckinghamshire’s most desirable locations—perfect for those seeking space, privacy, and a connection to the countryside without compromising on convenience.

Historical Note

Rignalls was designed by the well-known Arts and Crafts architect, Charles Holden, in 1909 for Sir Felix Semon. Sir Felix a prominent doctor and attended to Edward VII and Winston Churchill. Gertrude Jekyll was employed to design the gardens and grounds, much of which are still in existence today. During the Second World War the house was owned by a member of the free French government. Amongst many, Charles de Gaulle is reputed to have visited on numerous occasions.

This property has 10 acres of land.

Outside

Rignalls is situated in an elevated position with a mature wooded backdrop overlooking the popular Hampden Valley.

Outbuildings include, Garages, Greenhouses & Stables Landscaped gardens: Orchard, Paddock & Mature woodland In all about 10.3 acres

The property is surrounded by well-maintained agricultural land and the traditional Beech woodland of the Chiltern Hills.

Read more
  • Floorplan
  • Map & Street View
Map View Street View
Get Directions
Have a property you want to sell?
Ref: LON240037
Interested in this property?
Guide Price
£4,000,000

National Country House Department

43 Cadogan Street
London
SW3 2PR

+44 20 7591 2213