Ripon North Yorkshire HG4 4EB Market Place, Masham

From£545,000
Ref: HRG240046
Interested in this property?
Guide Price From
£545,000

Features at a glance

  • A charming Grade II listed townhouse
  • Prime position in a popular, picturesque market town
  • Lot 1 - Main House - 4 bedrooms
  • 3 bathrooms
  • 3 reception rooms
  • courtyard garden
  • guide price £545,000
  • Lot 2 - The Nook - 1 bedroom
  • 1 bathroom
  • 1 reception room
  • single garage
  • off street parking
  • planning permission in place
  • guide price £195,000

A charming and fully refurbished Grade II listed townhouse in a prime position

**The Merchants House - Lot 1** Currently rented out as a luxurious holiday home this handsome Grade II listed property is ideal as an investment property or as an exquisite family home. Dating back to the late 18th century it has been fully renovated by the current owners to include rewiring and plumbing throughout. It features a wealth of character features complemented by modern fittings and décor throughout.

The accommodation is arranged across three light filled levels. On the ground floor there are two reception rooms, including a welcoming snug and a comfortable sitting room with a cast-iron fireplace and Karndean oak effect flooring that adds a touch of natural elegance and provides warmth and comfort. To the rear, the impressive 27ft open-plan kitchen and dining area offers the perfect space in which to dine and entertain. French doors open out to the rear courtyard garden and skylight overhead welcoming plenty of natural light. The kitchen is fitted with sleek grey Shaker-style units with marble effect worksurfaces that provides plenty of storage and a stainless steel Cookmaster range cooker, with a five-zone ceramic hob, it offers ample room for your culinary creations.

There are two well-presented double bedrooms on the first floor, including the principal bedroom with its generous en suite bathroom with clawfoot bath and a separate family shower room. There is access to the former roof terrace via a set of double French doors just off the stairway which could be the perfect place to relax and unwind.

On the second floor, there are two further double bedrooms, one of which is en suite with a walk-in dressing area.

Outside At the front, the house opens directly onto Market Place with its historic buildings and regular markets. Extensive parking is available in the Market Place. There is a walled courtyard garden to the rear.

Services: Mains electricity, gas, water and drainage

The Merchants House Guide Price: £545,000

Agents Note: A full list of what has been refurbished is available on request. There are two lots available by separate negotiation or as a whole.

Directions HG4 4EB - ///give.cork.exits

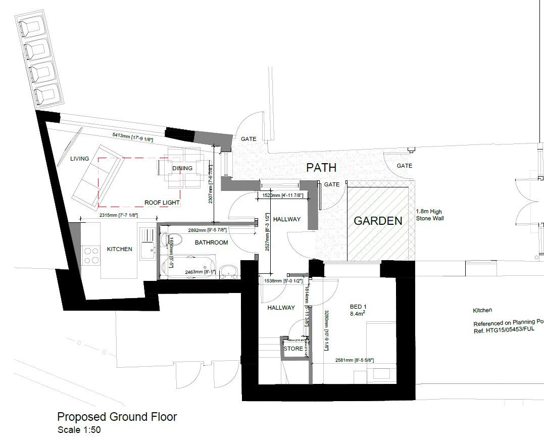
**The Nook - Lot 2** A fantastic development opportunity to convert a character one-bedroom Mews cottage with garage into a 600 sq. ft two bedroom bijou home. There is a charming courtyard garden that leads onto the single garage and off-street parking area.

The property Converted in 2020 from the former storehouse to the Grade 2 listed The Merchants House which it stands behind. The Nook is a bijou one bedroom cottage peacefully tucked away from the thriving market town centre of Masham. The ground floor currently comprises a living area with a separate shower room just off the entrance. On the first floor you will find a generous double bedroom.

Outside There is a charming courtyard garden that leads onto the single garage and off-street parking area.

Planning Planning permission has been granted to blend historic craftsmanship with contemporary design and transform this timeless building into a fantastic two-bedroom property with modern open plan living.

Planning ref: 25/02354/FUL

Prospective purchasers are advised that they must make their own enquiries of the local planning authority. A fixed price quote from a highly reputable builder is available upon request

Services: Mains electricity, water and drainage

The Nook Guide Price: £195,000

Directions HG4 4DR - ///boot.habits.lends

Situation

Location The market town of Masham lies alongside the River Ure and on the edge of the Nidderdale National Landscape, nine miles north of the cathedral city of Ripon. The town offers various everyday amenities including local shops, restaurants, cafés and pubs, as well as a primary school. Ripon is easily accessible and offers extensive further facilities, including high street shops and large supermarkets, and a choice of schooling, including the outstanding-rated Outwood Academy. The area is perfectly placed for walking, cycling and riding routes in the surrounding countryside, while golf is available at Masham Golf Club. Local road connections include the A1(M) eight miles away, while mainline rail services are available from Thirsk.

Directions

HG4 4EB - ///give.cork.exits

Read more
  • Floorplan
  • Virtual Viewing
  • Map & Street View
Map View Street View
Get Directions
Ref: HRG240046
Interested in this property?
Guide Price From
£545,000