Ingatestone Essex CM4 9BZ School Lane, Stock

Guide Price
£800,000
  • 4
  • 2
  • 2
  • Freehold
  • E Energy Efficiency Rating
Ref: CHM260037
Interested in this property?
Guide Price
£800,000

A semi-detached cottage in 0.25 of an acre.

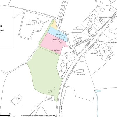
This is Norwood, Lot 2, marked blue on the plan.

The right side cottage, totals more than 1,800 sq ft and has four bedrooms, one with en suite, and a bathroom to the first floor, with two reception rooms, a sunroom, a working kitchen and utility room, a sauna and shower room. There is also an integral double garage and driveway parking to the side and front, whilst the garden extends to about 0.26 of an acre.

Council Tax: Band G EPC Rating: D

A further 4 semi-detached cottage available for a further £800,000 guide price, and additional land available by separate negotiation.

Land available by separate negotiation Accessed by a track that runs behind the cottages, a further 2.6 acre plot is available to the buyer of the ‘whole’ or to either cottage. Bordered and interspersed by mature specimen trees and hedging, there is also a stable block. The site is sold as seen.

Guide Price: Whole - £1,650,000 Norbon - £800,000 Norwood - £800,00

This property has 0.26 acres of land.

Situation

The cottages sit on the edge of the village and within the conservation area, in a small turning just off Stock Road, under half a mile from Stock High Street.

The village itself is arranged around the 15th century Church of All Saints and has a wide range of traditional and contemporary properties and architectural styles. The village offers everyday amenities including a post office, coffee shop, village store. wine shop, and three public houses. Ingatestone station to the west and Billericay station to the south provide a regular service to London Liverpool Street with an approximate journey time of 30 minutes.

Junction 16 of the A12 is located to the North giving access onwards to the M25. The City of Chelmsford provides a broader range of commercial, entertainment, shopping and leisure facilities. There are a number of excellent schools in the area, both state and private, including King Edward VI’s Grammar School, Chelmsford County High School for Girls, Brentwood School, New Hall and the Felsted School.

Read more
  • Floorplan
  • Map & Street View
Map View Street View
Get Directions
Have a property you want to sell?
Ref: CHM260037
Interested in this property?
Guide Price
£800,000