Ingatestone Essex CM4 9BZ School Lane, Stock

From£1,650,000
Ref: CHM260018
Interested in this property?
Guide Price From
£1,650,000

Features at a glance

  • Whole £1,650,000
  • Norbon £800,000
  • Norwood £800,000

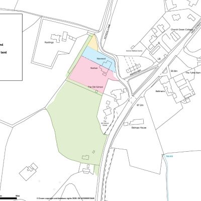
A pair of semi-detached cottages available as a whole or in 2 lots.

Overview Having been in the same family’s ownership for more than 90 years, this is a rare opportunity to acquire either or both properties and the adjoining land.

With almost 3,800 sq ft across the two cottages, combined with garaging, stables, and mature grounds of 3.5 acres, Norbon and Norwood’s accommodation is set out over two floors and offer potential for renovation; subject to the necessary consents could have the opportunity to create a larger single dwelling.

The properties enjoy stunning views across their gardens and countryside beyond.

Norbon The left side cottage, totals almost 1,500 sq ft and offers three bedrooms and a shower room to the first floor, with three reception rooms, a working kitchen, a further shower room and utility room. A detached garage and driveway sit to the side and front aspect, and it has a larger plot totalling 0.6 of an acre.

Norwood The right side cottage, totals more than 1,800 sq ft and has four bedrooms, one with en suite, and a bathroom to the first floor, with two reception rooms, a sunroom, a working kitchen and utility room, a sauna and shower room. There is also an integral double garage and driveway parking to the side and front, whilst the garden extends to about 0.26 of an acre. Land Accessed by a track that runs behind the cottages, a further 2.6 acre plot is available to the buyer of the ‘whole’ or to either cottage. Bordered and interspersed by mature specimen trees and hedging, there is also a stable block. The site is sold as seen.

General Local Authority: Chelmsford City Council

Services: All services connected. Mobile and Broadband checker: Information can be found here https://checker.ofcom.org.uk/en-gb/

Norbon: Council Tax: Band F EPC Rating: E

Norwood: Council Tax: Band G EPC Rating: D

Guide Price: Whole - £1,650,000 Norbon - £800,000 Norwood - £800,00

This property has 3.5 acres of land.

Situation

The cottages sit on the edge of the village and within the conservation area, in a small turning just off Stock Road, under half a mile from Stock High Street.

The village itself is arranged around the 15th century Church of All Saints and has a wide range of traditional and contemporary properties and architectural styles. The village offers everyday amenities including a post office, coffee shop, village store. wine shop, and three public houses. Ingatestone station to the west and Billericay station to the south provide a regular service to London Liverpool Street with an approximate journey time of 30 minutes.

Junction 16 of the A12 is located to the North giving access onwards to the M25. The City of Chelmsford provides a broader range of commercial, entertainment, shopping and leisure facilities. There are a number of excellent schools in the area, both state and private, including King Edward VI’s Grammar School, Chelmsford County High School for Girls, Brentwood School, New Hall and the Felsted School.

Read more
  • Map & Street View
Map View Street View
Get Directions
Ref: CHM260018
Interested in this property?
Guide Price From
£1,650,000