Northallerton North Yorkshire DL7 0JB South Cowton

Offers Over
£550,000
  • 5
  • 2
  • 7
  • Freehold
  • D Council Band
Ref: HRG230176
Interested in this property?
Offers Over
£550,000

Features at a glance

  • A country public house
  • Development opportunity subject to planning
  • Five-bedroom apartment
  • Large plot
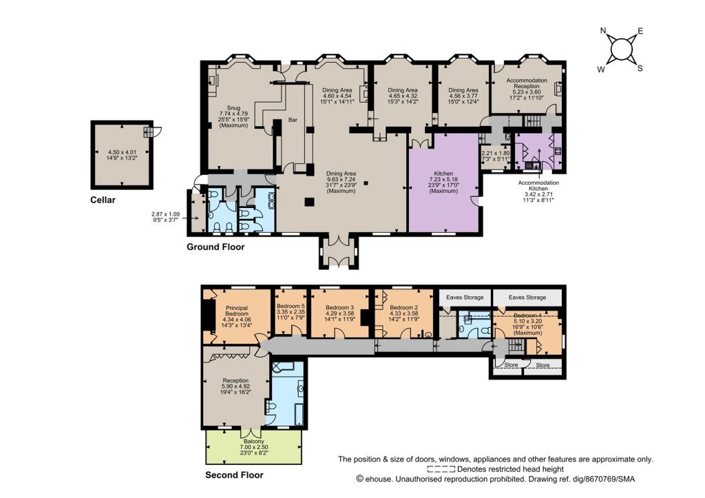
  • Internal area 5,134 sq. ft (477 sq m)

A country public house, plus a five-bedroom apartment, all with the potential for redevelopment

A period public house with extensive bar and dining facilities, as well as a five-bedroom apartment set in a large plot, in a peaceful rural setting between Northallerton and Darlington. The property provides the potential for continued use as a hospitality venue, or conversion into a larger home or several dwellings, subject to the necessary planning consents.

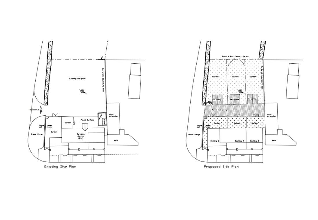
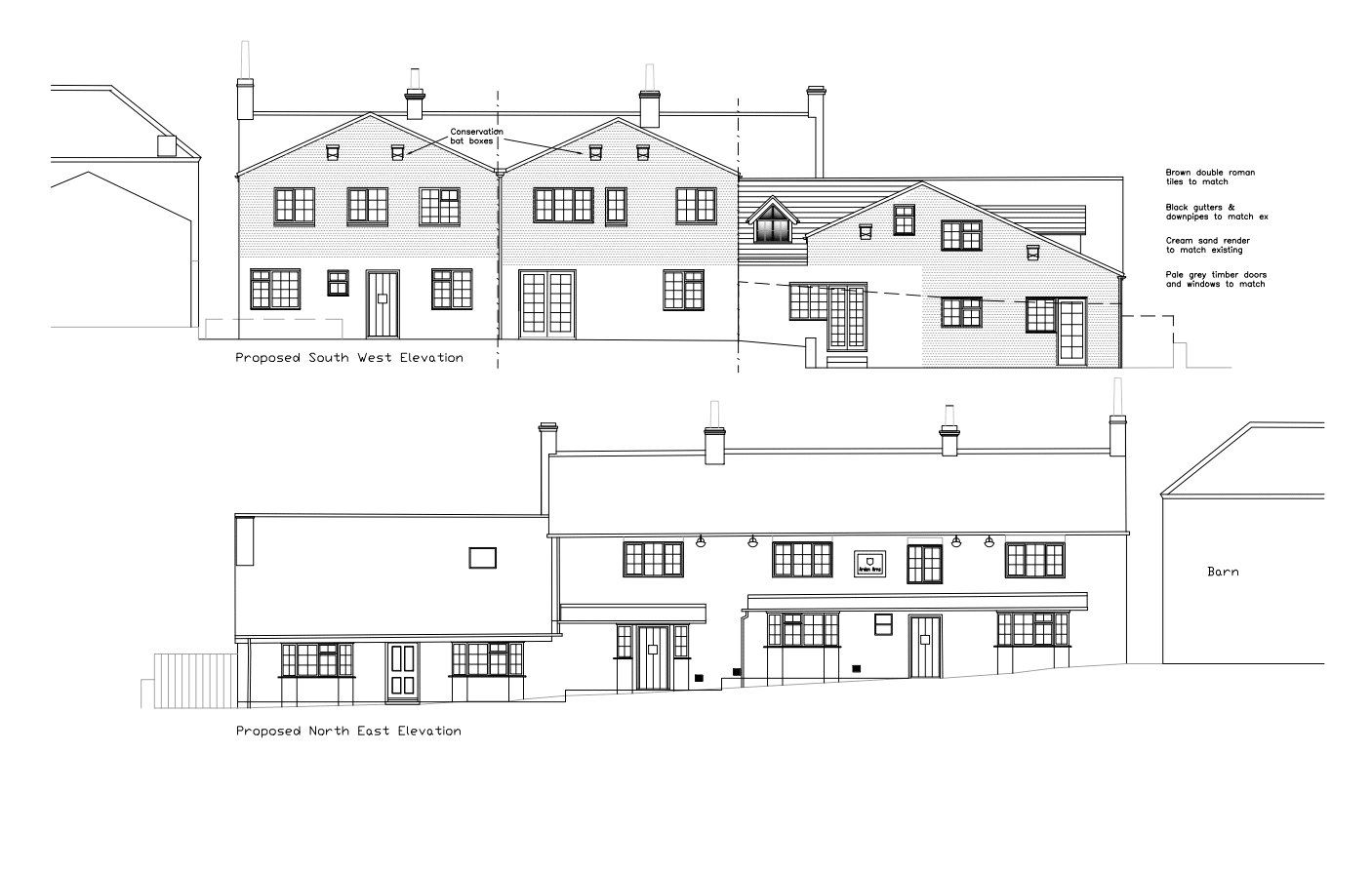
The property Arden Arms is a public house, set in the hamlet of Atley Hill and surrounded by beautiful rolling North Yorkshire Countryside. Extending to more than 5,000 square feet of internal space, including a double-sided bar with dining facilities, a large kitchen and a five-bedroom split-level apartment, the property retains various splendid original details, but also requires renovation and modernisation. Plans have been drawn up to convert the property into three self-contained dwellings, subject to the granting of planning permission. Prospective purchasers are advised that they should make their own enquiries of the local planning authority.

In its present form, the property has a welcoming and spacious public house with a large open main bar and dining area, with its wood panelled bar and exposed timber beams overhead. The bar also serves the comfortable snug, a relaxed secondary area with a handsome inglenook fireplace and banquette seating. Additionally, there are two further dining rooms, toilet facilities and a large commercial kitchen requiring new fittings. There is potential to restore and relaunch the public house, either as a pub or restaurant, with its welcoming and flexible layout and attractive original detailing, it offers the potential to become a popular destination dining venue as well as a relaxed local drinking establishment.

The apartment has a private ground-floor entrance into its own kitchen, which has fitted storage units to base and wall level, as well as space for all the necessary appliances. There is one reception to the ground floor, while upstairs there is a further well-proportioned sitting room with double doors opening onto a west-facing balcony. The first floor also has five double bedrooms, eaves storage and two-family bathrooms.

The home and public house both require complete renovation but offer a blank canvas either for revival of the public house and current accommodation, or to reconfigure the property and convert into up to three new dwellings.

Services: Mains electricity, gas and water. Private drainage which we understand may not comply with the relevant regulations.

This property has 0.73 acres of land.

Outside

Outside The property occupies a generous corner plot with excellent access and view across the surrounding countryside. There is an entrance to both the bar and apartment at the front, while at the rear there is a patio area and a large gravel carpark.

Situation

Location The hamlet of Atley Hill lies in a rural North Yorkshire position, within easy reach of Northallerton and Darlington, as well as the stunning landscapes of the North York Moors and the Yorkshire Dales. The nearby village of North Cowton offers several amenities, including a village hall and a local pub, as well as a primary school, while the larger villages of Brompton on Swale and Catterick offer various shops, amenities and leisure facilities.

Northallerton lies eight miles to the south, with its bustling high street and choice of supermarkets, while Darlington is a similar distance to the north and provides a wider variety of leisure and cultural facilities.

Additional schooling in the area includes state secondary options at Northallerton, Darlington and Richmond, as well as the independent Aysgarth School in Bedale. Transport connections include the A1(M) within six miles, while rail services can be found in Northallerton and Darlington.

Directions

Postcode: DL7 0JB

What3words: ///slept.congested.sugars - brings you to the driveway

Read more
  • Floorplan
  • Map & Street View
Map View Street View
Get Directions
Have a property you want to sell?
Ref: HRG230176
Interested in this property?
Offers Over
£550,000